Zoek in alles
1615 Dienst Ruimtelijke ordening/Economische Zaken: werktekeningen, 1860-1990

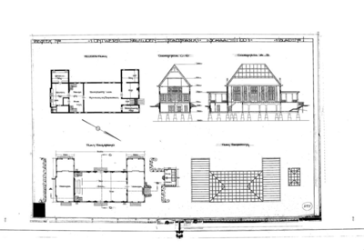
1155 Ontwerp Paviljoen Stadspark : - / J.A. Mulock Houwer (Tekenaar), 1925
Titel:
Ontwerp Paviljoen Stadspark
Datering:
1925
Maker:
J.A. Mulock Houwer (Tekenaar)
Schaal:
1:100
Techniek:
tekening op calque
Vorm:
Technische tekening
Weergave:
Verzamelblad
Afmeting:
blad: 65x99 cm
Objectsoort:
Paviljoen
Opmerkingen:
Datering: Schatting
-Klappernr. 142
Aantekening: -Blad nr. 1
-Klappernr. 142
Aantekening: -Blad nr. 1
Verwijzing:
Gemeentewerken, 1882 - 1947
Oude nummers:
107 -Blad nr. 1
Ga naar dit stuk:
Volgnummer:
1 van 1
laatste wijziging 20-02-2019
totaal 1 bestand
Mijn Studiezaal (inloggen)