Zoek in alles
1615 Dienst Ruimtelijke ordening/Economische Zaken: werktekeningen, 1860-1990

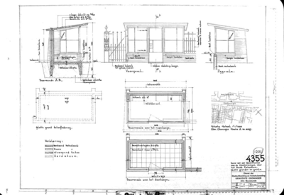
1203 Bouw van een wachthuisje aan de Oostersingel voor het Academisch Ziekenhuis : - / P.v.D. (Tekenaar), 1952
Titel:
Bouw van een wachthuisje aan de Oostersingel voor het Academisch Ziekenhuis
Datering:
1952
Maker:
P.v.D. (Tekenaar)
Schaal:
1:20
Techniek:
tekening op calque
Vorm:
Technische tekening
Weergave:
Verzamelblad
Afmeting:
blad: 59x79 cm
Objectsoort:
Wachthuisje
Opmerkingen:
Datering: Volgens stuk
-Klappernr. 203
Aantekening: -Bladnr. 1
-Klappernr. 203
Aantekening: -Bladnr. 1
Verwijzing:
Stadsuitbreiding en Volkshuisvesting, 1947 - 1966. Afdeling: BWKN = Bouwkunde
Oude nummers:
4355 -Bladnr. 1
Ga naar dit stuk:
Volgnummer:
1 van 1
laatste wijziging 20-02-2019
totaal 1 bestand
Mijn Studiezaal (inloggen)