Zoek in alles
1615 Dienst Ruimtelijke ordening/Economische Zaken: werktekeningen, 1860-1990

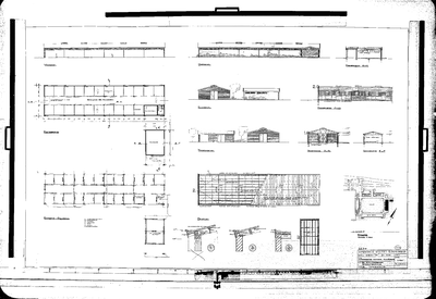
3230 Uitbreiding manege Stadspark, 22 stallingsboxen, bestektekening : - / K.H. (Tekenaar), 1968
Titel:
Uitbreiding manege Stadspark, 22 stallingsboxen, bestektekening
Datering:
1968
Maker:
K.H. (Tekenaar)
Schaal:
1:100
Techniek:
tekening op calque
Vorm:
Technische tekening
Weergave:
Verzamelblad
Afmeting:
blad: 90x138 cm
Objectsoort:
Manege
Opmerkingen:
Datering: Volgens stuk
Aantekening: -
Aantekening: -
Verwijzing:
Openbare Werken, 1947 - 1987. Afdeling: NWWR = Nieuwe werken (zeer uiteenlopende projecten)
Oude nummers:
42-371-9 -
Ga naar dit stuk:
Volgnummer:
1 van 1
laatste wijziging 20-02-2019
totaal 1 bestand
Mijn Studiezaal (inloggen)