Bestanden
1615 Dienst Ruimtelijke ordening/Economische Zaken: werktekeningen, 1860-1990

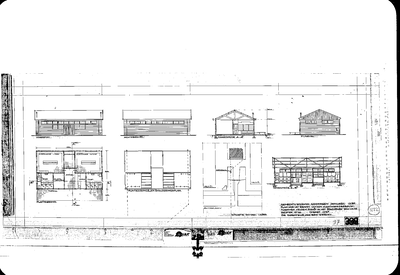
1122 Plan voor het bouwen van een kleedkamergebouw tussen velden A en B in het Stadspark : - , 1937
Titel:
Plan voor het bouwen van een kleedkamergebouw tussen velden A en B in het Stadspark
Datering:
1937
Schaal:
1:20
Techniek:
tekening op calqueerlinnen
Vorm:
Technische tekening
Weergave:
Verzamelblad
Afmeting:
blad: 38x86 cm
Objectsoort:
Kleedkamergebouw
Opmerkingen:
Datering: Volgens stuk
-Klappernr. 36
-Klappernr. 36
Verwijzing:
Gemeentewerken, 1882 - 1947
Oude nummers:
97
Ga naar dit stuk:
Volgnummer:
1 van 1
laatste wijziging 20-02-2019
totaal 1 bestand
Mijn Studiezaal (inloggen)