Kaarten en tekeningen
1615 Dienst Ruimtelijke ordening/Economische Zaken: werktekeningen, 1860-1990

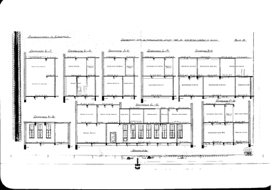
477 Doorsneden over de verschillende lokalen voor de gewapend betonvloeren en balken : - , 1915
Titel:
Doorsneden over de verschillende lokalen voor de gewapend betonvloeren en balken
Datering:
1915
Schaal:
1:50
Techniek:
tekening op calque
Vorm:
Technische tekening
Weergave:
Doorsnede
Afmeting:
blad: 59x111 cm
Objectsoort:
Kantoor
Opmerkingen:
Datering: Schatting
-Klappernr. 160
Aantekening: -Bladnr. 15
-Klappernr. 160
Aantekening: -Bladnr. 15
Verwijzing:
Gemeentewerken, 1882 - 1947
Oude nummers:
202 -Bladnr. 15
Ga naar dit stuk:
Volgnummer:
1 van 1
laatste wijziging 20-02-2019
totaal 1 bestand
Mijn Studiezaal (inloggen)