119 Kaarten en tekeningen
1615 Dienst Ruimtelijke ordening/Economische Zaken: werktekeningen, 1860-1990
Plaatsingslijst
School Hofstraat : - , 1913-1962

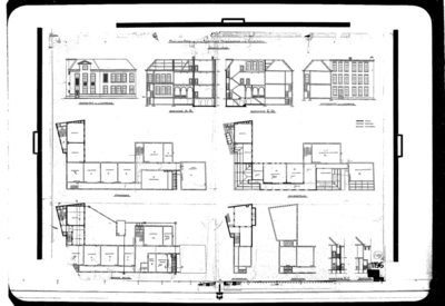
1089 Plan voor de verbouw van de Middelbare Meisjeschool in de Hofstraat : - , 1919
Titel:
Plan voor de verbouw van de Middelbare Meisjeschool in de Hofstraat
Datering:
1919
Schaal:
1:100
Techniek:
tekening op calque
Vorm:
Technische tekening
Weergave:
Verzamelblad
Afmeting:
blad: 92x123 cm
Objectsoort:
School
Opmerkingen:
Datering: Volgens stuk
-Klappernr. 77
-Klappernr. 77
Verwijzing:
Gemeentewerken, 1882 - 1947
Oude nummers:
1196
Trefwoorden:
Geografische namen:
Is onderdeel van:
laatste wijziging 28-10-2015
1 gedigitaliseerd
1615 Dienst Ruimtelijke ordening/Economische Zaken: werktekeningen, 1860-1990
Plaatsingslijst
School Hofstraat : - , 1913-1962

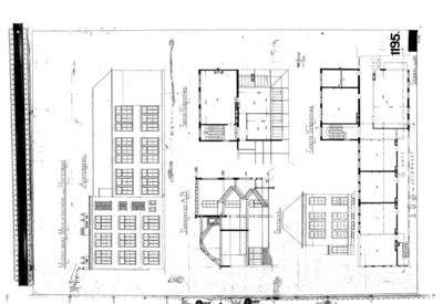
1083 Middelbare Meisjesschool in de Hofstraat, achtergevel : - , 1913
Titel:
Middelbare Meisjesschool in de Hofstraat, achtergevel
Datering:
1913
Schaal:
1:100
Techniek:
tekening op calqueerlinnen
Vorm:
Technische tekening
Weergave:
Verzamelblad
Afmeting:
blad: 77x55 cm
Objectsoort:
School
Opmerkingen:
Datering: Schatting
-Klappernr. 77
-Klappernr. 77
Verwijzing:
Gemeentewerken, 1882 - 1947
Oude nummers:
1195
Ga naar dit stuk:
Trefwoorden:
Geografische namen:
Is onderdeel van:
laatste wijziging 28-10-2015
1 gedigitaliseerd
1615 Dienst Ruimtelijke ordening/Economische Zaken: werktekeningen, 1860-1990
Plaatsingslijst
School Hofstraat : - , 1913-1962

1082 Middelbare Meisjesschool in de Hofstraat, voorgevel : - , 1913
Titel:
Middelbare Meisjesschool in de Hofstraat, voorgevel
Datering:
1913
Schaal:
1:100
Techniek:
tekening op calqueerlinnen
Vorm:
Technische tekening
Weergave:
Verzamelblad
Afmeting:
blad: 78x55 cm
Objectsoort:
School
Opmerkingen:
Datering: Schatting
-Klappernr. 77
-Klappernr. 77
Verwijzing:
Gemeentewerken, 1882 - 1947
Oude nummers:
1196
Ga naar dit stuk:
Trefwoorden:
Geografische namen:
Is onderdeel van:
laatste wijziging 28-10-2015
1 gedigitaliseerd
1615 Dienst Ruimtelijke ordening/Economische Zaken: werktekeningen, 1860-1990
Plaatsingslijst
School Hofstraat : - , 1913-1962

1068 Wijziging gewapend betonwerken Middelbare Meisjesschool Hofstraat Groningen : - , 1919
Titel:
Wijziging gewapend betonwerken Middelbare Meisjesschool Hofstraat Groningen
Datering:
1919
Schaal:
1:20
Techniek:
blauwdruk
Vorm:
Technische tekening
Weergave:
Verzamelblad
Afmeting:
blad: 33x66 cm
Objectsoort:
School
Opmerkingen:
Datering: Volgens stuk
-Klappernr. 77
-Klappernr. 77
Verwijzing:
Gemeentewerken, 1882 - 1947
Oude nummers:
A2990A
Ga naar dit stuk:
Trefwoorden:
Geografische namen:
Is onderdeel van:
laatste wijziging 28-10-2015
1 gedigitaliseerd
Mijn Studiezaal (inloggen)